Каталог

9105640 НАПРАВЛЯЮЩАЯ QUADRO 22 SFG, 22 КГ, NL300, ЧАСТИЧНОГО ВЫДВИЖЕНИЯ, EB20, ПРАВАЯ

Артикул товара: 22896
Избранные товары

Характеристики

Комплектующие Направляющая правая
Функция выдвижения Стандарт
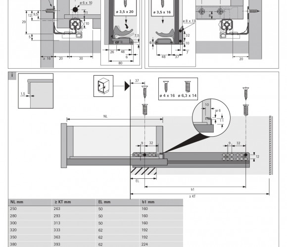
Длина 300 мм
Тип выдвижения Частичное
Несущая способность 22 кг

Описание

Quadro 25 с функцией Stop Control, 300 мм, Правый

  • - Stop Control — встроенный механизм закатывания для самостоятельного закрывания
  • - Комфортный надвижной монтаж с фиксаторами и регулировка по высоте без инструмента
  • - Гибкая система замены — вместо Quadro с частичным выдвижением устанавливаются направляющие полного выдвижения, размеры корпуса, ящика и передней панели при этом не меняются
  • - Нагрузочная способность соответствует стандарту EN 15338, уровень 3

Наличие товара в городах
Челябинск 20 шт
Уфа нет в наличии
Тюмень нет в наличии

Выбрать город
Челябинск
Челябинск, ул. Шарова, 77
+7 (351) 734-97-98 (многоканальный)
Уфа
Республика Башкортостан, Уфа, Базисный проезд, 4
+7 (347) 216-55-40 (многоканальный)
Тюмень
Тюмень, Московский тракт, 136/9
+7 (3452) 66-63-33 (многоканальный) , +7 982 972-27-33