Каталог

Престиж Напр. Верхние (Серебро.) KF1-20

Артикул товара: 23190
Избранные товары

Характеристики

Производитель Росла
Вид товара Направляющая двойная верхняя
Вид системы Росла Престиж
Цвет Серебро

Описание

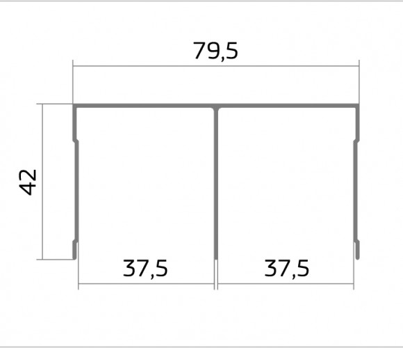
Направляющая двойная ВЕРХНЯЯ системы Престиж 
Цвет - Серебро 
Товар продаётся хлыстами
Длина хлыста: 2м  3м  4м  6м

Минимальный заказ 2 погонных метра 

ИНСТРУКЦИЯ 

Цена в Тюмени
783,29 ₽ / п/м

Наличие товара в городах
Челябинск больше 100 п/м
Уфа 19 п/м
Тюмень 55 п/м

Выбрать город
Челябинск
Челябинск, ул. Шарова, 77
+7 (351) 734-97-98 (многоканальный)
Уфа
Республика Башкортостан, Уфа, Базисный проезд, 4
+7 (347) 216-55-40 (многоканальный)
Тюмень
Тюмень, Московский тракт, 136/9
+7 (3452) 66-63-33 (многоканальный) , +7 982 972-27-33