Каталог

Напр Quadro частичного выдвижения деревянный ящик 400мм

Артикул товара: к-82
Избранные товары

Характеристики

Производитель Hettich
Функция выдвижения Стандарт
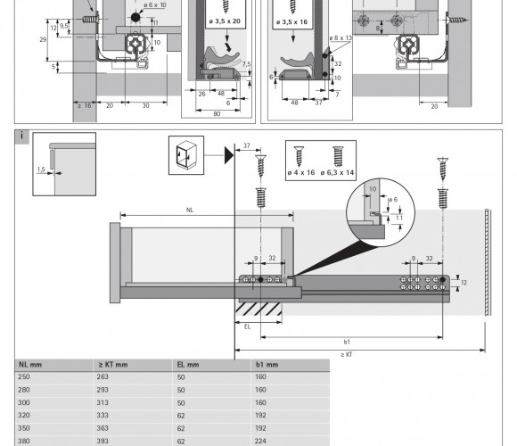
Длина 400 мм
Тип выдвижения Частичное
Несущая способность 25 кг

Описание

Quadro 25 частичного выдвижения с демпфером Stop Control, NL 400 мм, левая и правая + фиксаторы 

  • - Stop Control — встроенный механизм закатывания для самостоятельного закрывания
  • - Комфортный надвижной монтаж с фиксаторами и регулировка по высоте без инструмента
  • - Гибкая система замены — вместо Quadro с частичным выдвижением устанавливаются направляющие полного выдвижения, размеры корпуса, ящика и передней - панели при этом не меняются
  • - Нагрузочная способность соответствует стандарту EN 15338, уровень 3
  • - Оцинкованная сталь, подходит для использования в помещениях с повышенной влажностью

    Состав комплекта приведен ниже 

Комплектующие

9105647 Напр Quadro,400мм, частич.выдв,(дерев.ящ) L 1
9105648 Напр Quadro,400мм, частич.выдв,(дерев.ящ) R 1
9144830 ФИКСАТОР ДЛЯ QUADRO НАДВИЖНОГО МОНТАЖА ДЛЯ ДЕРЕВЯННЫХ ЯЩИКОВ, ЛЕВЫЙ 1
9144841 ФИКСАТОР ДЛЯ QUADRO НАДВИЖНОГО МОНТАЖА ДЛЯ ДЕРЕВЯННЫХ ЯЩИКОВ, ПРАВЫЙ 1
Наличие товара в городах
Челябинск нет в наличии
Уфа нет в наличии
Тюмень нет в наличии

Выбрать город
Челябинск
Челябинск, ул. Шарова, 77
+7 (351) 734-97-98 (многоканальный)
Уфа
Республика Башкортостан, Уфа, Базисный проезд, 4
+7 (347) 216-55-40 (многоканальный)
Тюмень
Тюмень, Московский тракт, 136/9
+7 (3452) 66-63-33 (многоканальный) , +7 982 972-27-33