Каталог

9270513 НАПРАВЛЯЮЩАЯ QUADRO 20 SFP, 20 КГ, NL300, ЧАСТИЧНОГО ВЫДВИЖЕНИЯ, EB20, ПРАВАЯ

Артикул товара: 45887
Избранные товары

Описание

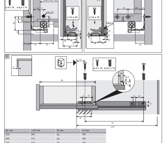
Надвижной монтаж с фиксаторами и регулировкой по высоте без инструмента

Встроенный механизм открывания Push to open

Возможна синхронизация (опционально)

Подходит для ящика с толщиной боковины до 16 мм

Концепция единой платформы: идентичные размеры корпуса, ящика и передней панели для направляющих Quadro полного и частичного выдвижения надвижного монтажа

Нагрузочная способность соответствует стандарту EN 15338, уровень 3

Оцинкованная сталь


Примечание:

При использовании держателя для фиксации полки в выдвинутом положении длину ящика необходимо уменьшить на 12 мм. (NL) (NL - 12 мм


Наличие товара в городах
Челябинск 36 шт
Уфа 16 шт
Тюмень нет в наличии

Выбрать город
Челябинск
Челябинск, ул. Шарова, 77
+7 (351) 734-97-98 (многоканальный)
Уфа
Республика Башкортостан, Уфа, Базисный проезд, 4
+7 (347) 216-55-40 (многоканальный)
Тюмень
Тюмень, Московский тракт, 136/9
+7 (3452) 66-63-33 (многоканальный) , +7 982 972-27-33