Каталог

САМЕТ Подъем. склад. Multi Mech B1 195 Антрацит, выс. фасад. 600-699 мм, 124.082.71.000.107

Артикул товара: 44955
Избранные товары

Описание

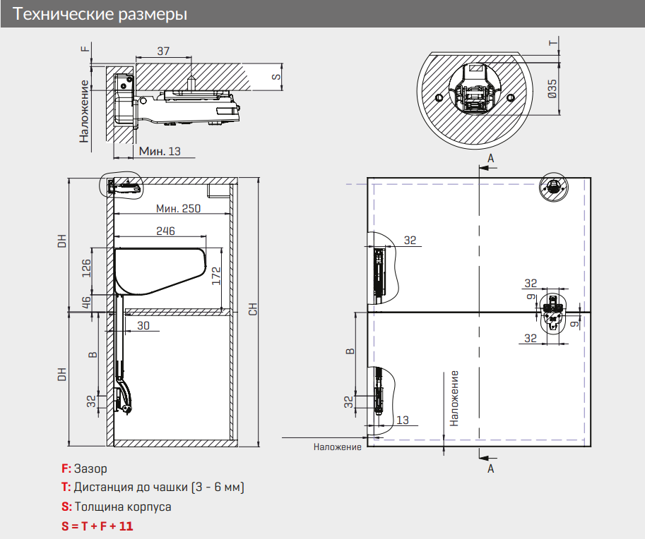
Характеристики:
- Высота фасада: 600-699 мм
- Ширина до 1.200 мм
- Динамическая нагрузка: блок В1
- Регулировка мощности и доводчика
- Защита пальцев
- 4 различных длины телескопического рычага
- Угол открывания 90 и 110 градусов
- Регулировка верхнего фасада:  по высоте (+/-2 мм) – по ширине (+/-2 мм) – по глубине (+/-2 мм)
- Регулировка нижнего фасада: по высоте (+/-3 мм) – по ширине (+/-2 мм) – по глубине (+/-2 мм)  

Комплектация:
- 2 механизма,
- 2 рычага,
- 2 заглушки,
- 2 петли к корпусу,
- 2 средние петли,
- 2 крепления к фасаду,
- шаблоны для установки,
- инструкция,
- комплект саморезов.

Как подобрать необходимый механизм?

1. Скачать Расчет подъемника Multi-Mech ( формат файла xlsx )
2. Ввести в таблицу параметры:
  - материала фасадов,
  - толщины фасадов,
  - суммарной высоты фасадов,
  - ширины фасадов,
  - цвет подъемника.
3. Скопируйте получившийся артикул и введите в поисковую строку на сайте. 


Скачать руководство по сборке Multi-Tech.pdf
 

Наличие товара в городах
Челябинск 5 к/т
Уфа нет в наличии
Тюмень нет в наличии

Выбрать город
Челябинск
Челябинск, ул. Шарова, 77
+7 (351) 734-97-98 (многоканальный)
Уфа
Республика Башкортостан, Уфа, Базисный проезд, 4
+7 (347) 216-55-40 (многоканальный)
Тюмень
Тюмень, Московский тракт, 136/9
+7 (3452) 66-63-33 (многоканальный) , +7 982 972-27-33